
家を買いたいBUY
賃貸事業用
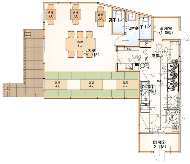
京都府京田辺市 「田辺沓脱アクアホームビル102号室」
- 物件ポイント
-
- 居抜き物件(蕎麦屋)
- 駐車場5台分
- 旧府道八幡木津線面す
- 什器備品引渡し相談
| 物件種別 | 賃貸事業用 |
|---|---|
| 賃 料 | 16.5万円/月 税込 |
| 所在地 | 京都府京田辺市田辺沓脱 |
| 交 通 | JR学研都市線京田辺駅より徒歩4分 近鉄京都線新田辺駅より徒歩8分 |
| 保証金 | 0円 |
| 解約引 | 0円 |
| 敷 金 | 2ヶ月円 |
| 礼 金 | 2ヶ月円 |
| 管理費 | 5,500円 |
| 間取り | |
| 建物使用面積 | 62.2m² |
| 構造 | 木造 |
| 築年月 | 平成29年3月 |
| 駐車場 | 5台分あり |
| 契約期間 | 2年間 |
| 現 況 | 居住中 |
| 引 渡 | 相談 |
| 設 備 | 公営水道、公共下水道、関西電力 |
| 取引態様 | 家主 |
| 備 考 | |
| 物件No | hc01009 |
- 所在地マップ
-













